拡大して見る
物件ID:5701320 更新日:2026-01-01
当店の専任物件なので、ご案内からご契約まですべて当店がおこないます!
オートバイOK(詳細はご相談)です。
24時間利用可能な宅配BOXを設置しています。
通信費は抑えたい。インターネット無料でご利用になれます。
オートロックをお探しの方、しっかり設置しております。
積水ハウス施工のラグジュアリー賃貸ブランド プライムメゾン
都営三田線 板橋区役所前駅徒歩5分。東武東上線 下板橋駅徒歩7分。JR埼京線 板橋駅徒歩10分。3沿線利用可能なので利便性抜群です。
凛とした佇まいの外観に、ホテルライクな内廊下。インターネットが無料でその他設備も充実しています。
3重のセキュリティシステム採用。エントランス(オートロック)1Fエレベーター前(ノンタッチリーダー)住戸玄関前インターフォンで3重のガードがセキュリティを保ち、防犯カメラも設置されているので防犯面も安心です。

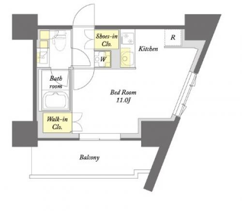
一人暮らしにぴったりな1Rのお部屋です。嬉しいバス・トイレ別間取り。ウォークインクローゼットつき。
クリックすると大きな写真がご覧いただけます。
タップすると大きな写真がご覧いただけます。
| 募集状況 / 入居可予定日 | 募集中 / 1月中旬 |
|---|---|
| 賃料 / 共益費等 | 12万円 / 10,000円 |
| 礼金 / 敷金 | 0円 / 0円 |
| 仲介手数料 | 132,000円(税込) ※取引態様が仲介の場合は原則貸主が賃料の税別0.5ヶ月分、借主が賃料の税別0.5ヶ月分ですが、この物件に関しましては借主が賃料の税別1ヶ月分となります。 |
| 清掃費 | 38,500円(税込) |
| 償却費 | 0円(税込) |
| 附帯費用リスト | 家財保険加入が必要 / 鍵交換あり / 指定の家賃債務保証会社利用必須 / 指定の24時間対応サービス加入必須 / 駐輪場代あり(利用者のみ) |
| 鍵交換代 | 27,500円(税込)
※ご入居毎、鍵交換を致します。スマートロックの場合は設定費用となります。 |
| 24時間対応サービス加入料 【シャーメゾンライフSUPPORT24】 |
【初回】
加入料:
0円 /
事務手数料:
0円 【毎月】 サポート料: 1,200円(税込) 【更新時】 更新料: 0円 / 事務手数料: 0円 |
| 家賃債務保証会社利用料 【らくらくパートナー】 |
【初回】
初回保証料:
0円 /
初回事務手数料:
33,000円(税込) 【毎月】 賃料と共益費等の2%(税込) 【更新時】 更新保証料: 0円 / 更新事務手数料: 0円 |
| 駐車場 | 普通8台:31000円(月額・税別)ミドルルーフ6台:32000円(月額・税別)ハイルーフ:10台:33000円(月額・税別) ※別途、敷金1ヶ月・仲介手数料1ヶ月掛かります。 ・タワー式パーキング敷地内全面はゴミ収集車の停車位置となる為、ゴミ収集作業中は車の出し入れができません。 |
| バイク置場 | バイク置場/11台:6000円(月額・税別)※別途、敷金1ヶ月・仲介手数料1ヶ月掛かります。 |
| 駐輪場 | 駐輪場/143台:登録料6000円/2年(税別) |
※取引態様が仲介の場合は原則貸主が賃料の税別0.5ヶ月分、借主が賃料の税別0.5ヶ月分ですが、この物件に関しましては借主が賃料の税別1ヶ月分となります。 ※一部物件を除き、ご負担頂く清掃費は契約時にお支払い頂きます。※ご契約には原則、家財保険のご加入が必要です。 ※駐車場代、バイク置場代、駐輪代、トランクルーム代などは別途ご契約した場合に必要な料金です。お部屋のみの場合は不要です。空き状況は店舗へお問い合わせください。 ※定期借家契約の場合、原則、更新はございません。再契約の可不可は店舗へお問い合わせください。※非課税項目の金額記載は原則、個人で住居目的でのご契約の金額です。それ以外のご契約の場合は消費税が加算されます。
所在地:東京都板橋区板橋三丁目1-8
板橋区役所前駅周辺
都営地下鉄三田線の板橋区役所前駅からは少し離れているのですが、ここいたばしボローニャ子ども絵本館は1993年から寄贈された世界80カ国、約2万冊の絵本が揃ってます!絵本の数もスゴイですが、もう一つ何がスゴイかと言うと、さまざまな物を再利用しているリサイクル型施設。
そしてこの施設ももともとは小学校。廃校になった旧板橋第3小学校を再利用されています。絵本館が小学校だったなんて・・・ 板橋区って良い町だなぁと思ってしまいました(涙)
そして入ってみると、旧小学校だったという事だけあって、気分はまるで小学生。
ボローニャ子ども絵本館は3階にあるらしく、ランドセルを背負って階段をタタターッタと駆け上がりたくなる心境です。大陸別、国別に分類されていて自由に見れます。中には珍しい本もあって、マニアはきっと興奮するはず!特にオススメはアジア大陸の絵本でしょうか。かなりエキゾチックです。(ジャパンも良いですが・・・。)童心に返りたくなったアナタ、言葉はわからないけど絵だけが見てみたいというアナタ、ぜひぜひ足を運んでみてください!
いたばしボローニャ子ども絵本館は都営三田線、板橋区役所前駅のとなり板橋本町駅から歩いて約5分です。
住所 東京都板橋区本町24-1いたばしボランティアNPOホール3階
開館 10時から17時(毎週月曜日・毎月末日・年末年始は休み)
| 物件ID | 5701320 |
|---|---|
| 物件名 | プライムメゾン板橋 301 |
| 所在地 | 東京都板橋区板橋三丁目1-8 |
| 最寄駅 |
|
| 間取 (タイプ) | ワンルーム (シングル向け) |
| 専有面積 / 向き | 27.36m² / 北向き |
| 所在階 / 階建て | 3階 / 18階建て |
| 種別 ⁄ 構造 | マンション / 鉄筋コンクリート造(RC造) |
| 築年月 | 2019年02月 |
| 建物設備(共通設備) | 都市ガス / 給湯 / モニター付インターフォン / オートロック / 防犯カメラ / CATV / インターネット無料(WiFi機器はご用意ください) / 敷地内ゴミ置場 / エレベーター / 宅配BOX / 駐車場有り / 駐輪場有り / 屋根付き駐輪場 / バイク置場有り |
| 部屋設備 | エアコン / システムキッチン / ガスコンロ / 室内洗濯機置場 / バス・トイレ別 / 浴室(暖房)乾燥機 / 脱衣スペース / 独立洗面化粧台 / (温水)洗浄機能付き便座 / 収納あり / (クローゼット) / シューズBOX / 玄関Wロック / 防犯ガラス / 複層ガラス / バルコニー / 室内物干し(ホスクリーン) / フローリング / (2口コンロ) / ウォークインクローゼット / シューズインクローゼット / 角部屋 |
| 共通条件 | オートバイ相談 |
| 契約期間 ⁄ 取引態様 | 2年 ⁄ 仲介(媒介) |
| 24時間対応サービス契約期間 | シャーメゾンライフSUPPORT24: 退室まで |
| 家賃債務保証会社契約期間 | らくらくパートナー: 退室まで |
| 備考 |
【注意事項】 ROOM COLOR:White ●指定の家賃債務保証会社、積水ハウスシャーメゾンパートナーズをご利用頂きます。【支払方法】毎月の賃料等のお支払いは口振が可能です(利用銀行要確認)。 ●「シャーメゾンライフSUPPORT24」にご加入頂きます。詳しくは 「シャーメゾンショップとは」のページをご覧下さい。※シャーメゾンライフSUPPORT24のご利用は原則、必須とさせて頂いておりますが、一部例外の場合もございます。詳しくは店頭にてご確認下さい。 【シャーメゾンライフCLUB】ご契約には積水ハウス不動産グループの「シャーメゾンライフCLUB」(入会費・年会費無料)に自働加入していただきます。特典として賃料に応じてシャーメゾンライフPOINTが自動的に貯まり、ご利用が出来ます。 【短期解約違約金】この物件は1年未満の短期解約に対して違約金が発生し、貸主へ支払うものとしますいたします。違約金額は下記です。契約開始日より6ヶ月以内のご解約の場合は賃料の1ヶ月分の違約金が発生いたします。12ヶ月以内のご解約の場合は賃料の0.5ヶ月分の違約金が発生いたします。12ヶ月超過した場合は違約金は発生いたしません。 無料インターネットは「e-mansion」を利用 |
| 禁止事項 | ペット飼育不可 / 楽器演奏不可 / 石油使用不可 / airbnb等の民泊利用不可 |
※各種情報と現況に差異がある場合は、現況優先となります。 ※電話回線工事は借り主のご負担となります。 ※徒歩分数は最寄り出口より1分を80mとし、距離のみの計算です。
| 住所 | 東京都新宿区高田馬場1-17-15 羽深ビル4F |
|---|---|
| 電話番号 / FAX番号 | 03-5155-6565 / 03-5155-6566 |
| 宅建業免許 | 東京都知事(12)第39368号 |
Copyright © 2017-2025 Ichii Ltd. All Rights Reserved.