皆様こんにちわ。
MAST イチイ池袋店の金子です。
本日は都営三田線「西台駅」 のお勧め賃貸マンションの
1DKのお部屋をご紹介致します。
まず立地場所ですが、
都営三田線「西台駅」から徒歩6分の住宅街です。
マンション名及び号室は
「ハイツY.M.T」1―D号室

このお部屋の何処がお勧めかって?
これからお勧めポイントをお教えします。
【お勧めポイント①】 大規模リフォーム実施済み!
水周りを中心に新規リフォームしました。
元々はバス・トイレ一緒でしたが、
脱衣スペースをも確保した洗濯機置場を室内に新設し、
浴室とトイレを別々にしました。

8帖のDKの床も新規でフローリングをはり、
独立洗面化粧台も新設しました。

【お勧めポイント②】角部屋で明るく広い室内!
角部屋2面採光なので明るい室内です。
キッチンにも窓があります。

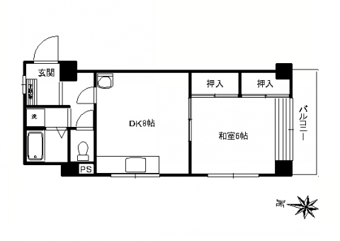
室内はDK8帖と和室6帖に
水周り・玄関スペース合わせて35.15㎡!

【お勧めポイント③】買物施設も近隣に有り!
高島平の区画整理された住宅街に立地。
近隣にはスーパーやドラッグストアもあり、
駅前にも大き目のスーパーがあります!
【お勧めポイント④】この条件でこの賃料!
賃料73,000円 共益費3,000円
敷金1ヶ月 礼金1ヶ月
と、とってもリーズナブルです!
どうですか?
三田線沿線で広くて綺麗で
リーズナブルなお部屋をお探しの方!!
今がチャンスです!!
是非一度ご覧下さい!!
ご連絡は
MAST ㈱イチイ池袋店の金子まで!
お待ちしておりMAST