MASTイチイ池袋店
斉藤です。
今月(9月)下旬、
埼京線十条駅徒歩9分の場所に
オートロック付新築マンションが完成します!
十条駅といえば
みんなのアイドル「JJ元気君(通称:Jちゃん)」がマスコットを務める、
十条銀座商店街が有名☆
東京都品川区にある「戸越銀座」、
東京都江東区にある「砂町銀座」と並び
東京三大銀座の一つと言われるほどの
商店街!!
そんなすごい商店街が近くにあるなんて素晴らしいっ!
それだけではありません!
物件の周辺となると
病院も警察もあるので、
もし困った事が起こっても安心・便利な環境なのです!
そんな素敵マンションが
今月(9月)完成なのです!!
早速、ご紹介しましょう!
物件名:アーバングラッド
敷金:1ヶ月 礼金: 2ヶ月
賃料:各室異なりますので下記の賃料表をご参照ください。
雑費:4,000円
設備:オートロック、エレベーター、防犯カメラ、エアコン、システムガスキッチン、追炊き、 独立洗面台、ウォシュレット、地デジ・BS・CS対応アンテナなどなど。
こちらのマンションは保証人不要システムをご利用いただく契約になりますので
「連帯保証人をたてるのが難しい。。」という方にもオススメです!
お部屋のタイプも、
一言に「1DK」といっても様々ありますので
お好みのタイプをお選びください。
101号室
102号室・203号室・303号室
201号室・301号室・401号室・501号室
202号室・302号室・402号室
403号室
502号室
601号室
602号室
お好みのタイプのお部屋はありましたか?
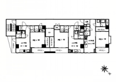
バラバラで分かりにくかった方は
各階の全体図をご覧ください。
1階
2階・3階
4階
5階
6階
車をお持ちの方は早いもの勝ちです!
駐車スペースも1台ございます。(要確認)
ゆったり広々お住まいになりたい単身者の方や
ご夫婦に、ぜひご覧いただきたい
オススメどころ満載の新築マンションです♪
涼しくなりはじめた、この季節に
新築マンションで新生活を送りませんか?
お問い合わせは
MASTイチイ池袋店まで!














